
ARQBÓREA
La orientación de las fachadas como impulsor del diseño y las ventajas de la biofilia
-
Arquitectura:Ortíz.León Arquitectos
-
Propiedad:GMP
-
Fachadista:Inasus
-
Fotografías:Adder Bustamante
-
Dirección:C. de Quintanadueñas, 6, Fuencarral-El Pardo, 28050 Madrid
-
Ciudad:Madrid
El edificio de oficinas ARQBOREA se sitúa en la calle Quintanadueñas, Madrid. Consta de tres volúmenes de oficinas de planta diáfana, conectados a través de dos volúmenes intermedios más estrechos donde se localizan los núcleos de comunicación vertical. El conjunto no se sitúa en la parcela ortogonalmente, quedando sus fachadas orientadas de norte-sur para maximizar la eficiencia de las soluciones de fachada.
La envolvente combina distintos diseños: los testeros disponen de una doble piel de vidrio y unas terrazas con vegetación integrada; las fachadas más expuestas a la radiación solar disponen de una fachada activa para aumentar el confort de los usuarios y mejorar el comportamiento energético mientras que el resto de fachadas se resuelve mediante un sistema modular.
-
ArquitecturaOrtíz.León Arquitectos
-
PropiedadGMP
-
FachadistaInasus
-
FotografíasAdder Bustamante
-
DirecciónC. de Quintanadueñas, 6, Fuencarral-El Pardo, 28050 Madrid
-
CiudadMadrid
Sistema Constructivo
La fachada tipo es un sistema modular de aluminio, con antepechos de vidrio, dando homogeneidad al conjunto. En las fachadas expuestas situadas al sur, este y oeste, esta fachada modular es una fachada activa, con una piel interior de puertas de vidrio que crea una cámara ventilada mecánicamente, donde se integran persianas de protección solar. Tanto la extracción del aire como la apertura de las persianas se controlan a través del sistema BMS del edificio, recuperando el calor de la cámara en invierno y expulsándolo en verano.
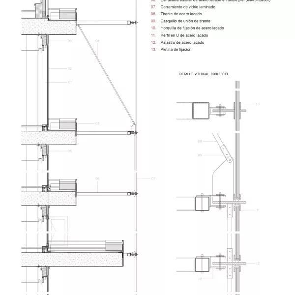
En los testeros orientados al este y oeste destaca una doble piel de vidrio que se sitúa delante de unas terrazas ajardinadas. Este cerramiento consta de unas pletinas de acero horizontales, que se soportan con anclajes a los forjados en las plantas intermedias para estabilización y tirantes desde la planta superior. La fijación del vidrio se realiza con tapetas exteriores atornilladas sobre los elementos en “L” que recogen horizontalmente el vidrio.
En los núcleos el cerramiento consta de una fachada ligera autoportante, con un revestimiento ventilado de deployé. En la zona de servicios se sitúan unas ventanas de perfilería de aluminio alineadas a la cara exterior del revestimiento, mientras que, en las fachadas de las escaleras, donde destaca la jardinera con los tirantes, se sitúa un muro cortina de aluminio integrado en el mismo tipo de cerramiento ligero.




