Ir al contenido principal

Sede Social Banco Popular (Actual Sede Banco Santander)

El detalle a medida para preservar el diseño arquitectónico

  • Arquitectura:
    Arquitectos Ayala
  • Propiedad:
    Banco Popular
  • Fachadista:
    Inasus
  • Fotografías:
    Luis Asín
  • Dirección:
    C. de Juan Ignacio Luca de Tena, 11, San Blas-Canillejas, 28027 Madrid
  • Ciudad:
    Madrid

El Proyecto se trata de un volumen prismático, exento, de 210m de largo, 57m de profundidad y 25m de altura.

Las fachadas alargadas se orientan al Sur, a la calle Juan Ignacio Luca de Tena (fachada Sur) y al Norte a la autovía A2.

Este gran volumen se descompone en cuatro bloques independientes, con sus propios accesos, separados por tres grandes espacios o patios intermedios. En el nivel de coronación, la planta superior ocupa la huella completa del edificio, uniendo de esta forma, los cuatro bloques independientes que, con la planta zócalo en el nivel inferior hacia la A2, reconfigura la imagen prismática de todo el conjunto.

  • Arquitectura
    Arquitectos Ayala
  • Propiedad
    Banco Popular
  • Fachadista
    Inasus
  • Fotografías
    Luis Asín
  • Dirección
    C. de Juan Ignacio Luca de Tena, 11, San Blas-Canillejas, 28027 Madrid
  • Ciudad
    Madrid

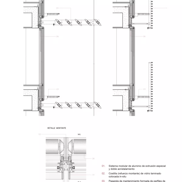
Sistema Constructivo

La fachada tipo se trata de un cerramiento modular con RPT, de aluminio anodizado (configurados por módulos planos, de poco espesor), que se colocan de forjado a forjado. Una vez instalados los módulos, se refuerza el sistema con costillas de vidrio interiores fijadas a modo de montantes en las juntas entre módulos. Los montantes de vidrio por el interior confieren a la fachada una imagen ligera y muy trasparente, resultando una banda de visión continua.

En el alzado Sur la fachada se protege del soleamiento con un sistema de viseras, atirantadas, compuesta por lamas de aluminio extruido tipo ala de avión en horizontal.

En fachada Norte la envolvente se convierte en una fachada doble piel al disponer una celosía exterior configurada mediante módulos de baguettes (sección circular) horizontales de pultrusión de poliéster y fibra de vidrio.

En los testeros y gran parte de la cubierta se coloca una gran envolvente de protección solar mediante módulos de lamas motorizadas de grandes dimensiones.

El edificio incorpora fachadas singulares, como las de los espacios a doble altura, resueltas también con sistema modular de gran dimensión, en este caso soportado por costillas de vidrio de 8m de altura y 40cm de canto. O el cerramiento del salón de actos, que es un gran cubo formado por una envolvente doble mediante vidrios de gran formato (10m de alto) que a su vez están atados por costillas, también de vidrio, perpendiculares.

Localización