Discovery Building
Fachada corpórea de acero inoxidable y vidrio
-
Arquitectura:Estudio Lamela
-
Propiedad:Colonial
-
Fachadista:Proinller
-
Fotografías:Daniel Schafer
-
Dirección:C. de Estébanez Calderón, 3, 5, Tetuán, 28020 Madrid
-
Ciudad:Madrid
Edificio de oficinas, entre medianeras, ubicado en calle Estébanez Calderón junto al Paseo de la Castellana (Madrid), entre Cuzco y Plaza Castilla. Se distribuye en 9 plantas sobre rasante, quedando rematada por una cubierta transitable ajardinada.
El edificio cuenta con 3 fachadas diferenciadas que la dotan de una gran luminosidad, la norte hacia la calle Estébanez Calderón, la Sur hacia un patio de manzanas y la fachada de los patios de luces que comparte con los edificios colindantes.
-
ArquitecturaEstudio Lamela
-
PropiedadColonial
-
FachadistaProinller
-
FotografíasDaniel Schafer
-
DirecciónC. de Estébanez Calderón, 3, 5, Tetuán, 28020 Madrid
-
CiudadMadrid
Sistema Constructivo
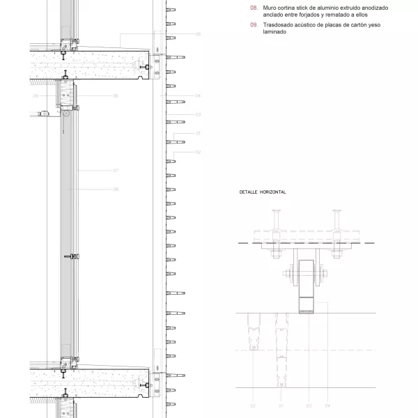
Fachada Norte / Prolongación de la estructura de hormigón mediante forros de rejillas metálicas flotantes, una planta de cada dos, con el fin de formar la sectorización EI en fachada, además de formar unas pasarelas exteriores de mantenimiento. El techo de los aleros se ha forrado de panelado metálico de composite de acero inoxidable con núcleo FR, pre-montados en taller e instalados posteriormente en obra. Muro cortina Stick entre forjados con vidrios fijados mecánicamente a través de su intercalario. En los extremos laterales, el sistema stick es continuo y tiene pasarelas metalicas fijas independientes a pilares.
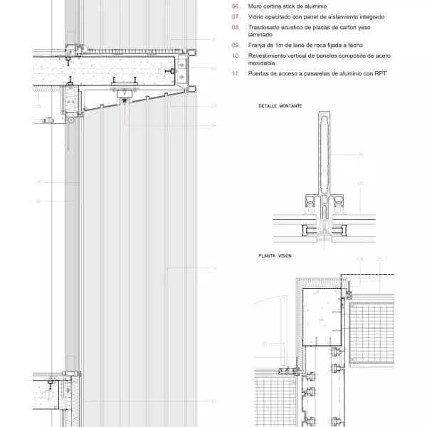
Fachada Sur / Doble piel formada por muro cortina Stick interior, estanquizado y rematado termo-acústicamente entre forjados. La piel exterior está formada por un sistema de celosía de lamas horizontales exteriores ancladas a los cantos de forjado dejando entre ambas una pasarela de mantenimiento de hormigón.
Fachada Patio / Sistema de acristalamiento interior con paneles metálicos de cierre de canto de forjado.
