Edificio KOI
Telón de vidrio. Alma de madera
-
Arquitecto:Ortíz. León Arquitectos
-
Propiedad:Royal Metropolitan
-
Fachadista:Martifer
-
Fotografías:David Frutos
-
Dirección:C. de Juan Hurtado de Mendoza, 4, Chamartín, 28036 Madrid
-
Ciudad:Madrid
El edificio KOI, en el número 4 de la calle Juan Hurtado de Mendoza en Madrid, es una estructura rehabilitada que alberga tres plantas de oficinas y un ático. Destaca su ubicación, ligeramente retirada de la calle, rodeada de edificios residenciales más altos en sus tres lados, lo que le confiere una presencia única y un ambiente tranquilo.
El acceso al edificio se ha renovado por completo, realizándose ahora a través de un elegante patio ajardinado, situado en un nivel inferior. Desde la calle, los visitantes pueden descender al patio mediante una escalera helicoidal, que aporta un toque arquitectónico distintivo, o bien utilizando un ascensor de vidrio que permite disfrutar de las vistas al jardín y su entorno.
-
ArquitectoOrtíz. León Arquitectos
-
PropiedadRoyal Metropolitan
-
FachadistaMartifer
-
FotografíasDavid Frutos
-
DirecciónC. de Juan Hurtado de Mendoza, 4, Chamartín, 28036 Madrid
-
CiudadMadrid
Sistema Constructivo
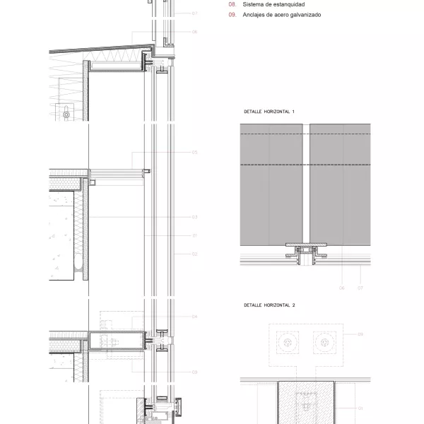
Fachada principal / Destaca por sus tramos curvos de vidrio en la zona del acceso. Se realiza con un muro cortina superpuesto, con vidrios de doble altura en la planta superiores. El sistema superpuesto consta de montantes de madera de grandes dimensiones que llevan al exterior una cabeza de acero para recibir los vidrios y el sistema de estanquidad de fachada. En las plantas inferiores encontramos travesaños de pletinas de acero, mientras que, en la planta intermedia donde se sitúa el vidrio de doble altura se dispone de un cierre en planta con un vidrio traslucido. En la planta ático se integra la barandilla en el muro cortina, con un perfil continuo de pletinas de acero en forma de U en toda la altura del edificio.
Fachada posterior / El cerramiento se realiza con un muro cortina de aluminio, integrando zonas opacas y vidrios con serigrafía para garantizar la privacidad con respecto a los vecinos.
Atrio / Destaca el atrio interior ajardinado donde se sitúa el núcleo de ascensores y las pasarelas de acceso a las oficinas, ambos de vidrio. El cerramiento interior de este atrio es curvo, realizado con vidrios a hueso fijados con un sistema de pletinas de acero al canto de forjado existente. El atrio se cierra con un lucernario en planta ático con forma de diente de sierra, destacando desde el interior las vigas de madera que lo soportan. El lucernario se resuelve con un sistema de muro cortina superpuesto a las vigas, con tapetas que oculta la fijación del vidrio e integran los canalones de desagüe.
