Sede Social CLH (Actual Sede Social Exolum)
Distintas fachadas para responder a las implicaciones de la orientación
-
Arquitectura:Galán / Lubascher Arquitectos
-
Propiedad:CLH
-
Fachadista:Folcrá
-
Fotografías:Miguel de Guzmán
-
Dirección:C. Titán, 13, Arganzuela, 28045 Madrid
-
Ciudad:Madrid
Edificio situado junto a la M-30 compuesto por dos volúmenes principales maclados entre sí. El volumen ciego compone los núcleos de servicios y comunicaciones, mientras que el volumen de mayor transparencia alberga las naves de oficinas diáfanas.
En el volumen de oficinas se dispone una doble piel exterior estanca para conseguir un mayor aislamiento acústico ante el ruido de las vías de tráfico rodado, mientras que en las fachadas de la “sombra acústica”, se disponen exclusivamente unas pasarelas para permitir la limpieza y mantenimiento de la fachada.
En las fachadas Sur, Este y Oeste se disponen unos elementos exteriores de protección solar, siendo de mayor opacidad en la fachada Oeste dónde se sustituye la piel exterior de vidrio por una piel de chapa perforada de acero inoxidable.
-
ArquitecturaGalán / Lubascher Arquitectos
-
PropiedadCLH
-
FachadistaFolcrá
-
FotografíasMiguel de Guzmán
-
DirecciónC. Titán, 13, Arganzuela, 28045 Madrid
-
CiudadMadrid
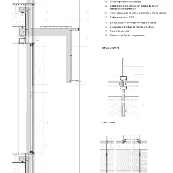
Sistema Constructivo
Fachada Interior / Muro cortina tradicional pasante por delante de los forjados. El muro cortina es un sistema mixto compuesto por pletinas estructurales de acero inoxidable sobre las que se adosa una cabeza exterior y travesaños de aluminio que confieren la estanqueidad del sistema, con unas dimensiones mínimas resaltando la esbeltez de la fachada.
Fachada Exterior / La piel exterior está compuesto por un vidrio templado extraclaro, que aporta las condiciones acústicas soportado mediante ménsulas de acero inoxidable en los cantos de forjado. Estas ménsulas tienen forma de “L” para conseguir una estabilización del vidrio en su parte intermedia y evitar un espesor excesivo del mismo. Adicionalmente sobre las ménsulas se dispone una pasarela de mantenimiento que se prolonga en vertical para dotar de protección solar en las Fachadas Este y Sur.
Fachada ciega / Fachada ventilada de cerámica extruida fijada sobre rastreles de aluminio con aislamiento pasante en la cara exterior de la hoja soporte.
Fachada de Acceso / Fachada de vidrio estructural compuesta por un vidrio laminado que se estabiliza horizontalmente mediante unos contrafuertes de vidrio laminado empotrados en el forjado inferior y superior. La unión entre el cerramiento y los contrafuertes se realiza por medio de elementos puntuales de acero inoxidable que permiten los movimientos diferenciales entre ambos elementos.
