
Caixa Forum
Intervenciones contemporáneas que revitalizan nuestro patrimonio aligerando lo pesado
-
Arquitectura:Herzog&DeMeuron / Mateu I Bausells Arquitectos
-
Propiedad:Fundación La Caixa
-
Fachadista:Bellapart / Ferrovial
-
Fotografías:Adder Bustamante
-
Dirección:P.º del Prado, 36, Centro, 28014 Madrid
-
Ciudad:Madrid
Rehabilitación de antigua central térmica para su conversión en museo y Centro de divulgación. El proyecto consiste en dos acciones fundamentales realizadas sobre el antiguo edificio de fábrica de ladrillo:
- La adición de un nuevo volumen que se apoya sobre el antiguo edificio.
- La intervención sobre el arranque del edificio original, al que se realizan sustracciones para generar una plaza pública bajo el mismo edificio.
La envolvente del volumen superior se configura como un elemento masivo tallado apoyado en el edificio original. Este volumen tiene un aspecto metálico oxidado. Se realiza un juego mediante distintos patrones de perforado que dinamiza la piel exterior y permite la entrada tamizada de la luz. El acceso al edificio se realiza a través de un espacio configurado por tres elementos: un gran sofito de acero conformado por planos triangulares y geometría facetada; el pavimento de hormigón; y los volúmenes de acceso y ascensores revestidos con vidrio espejo.
-
ArquitecturaHerzog&DeMeuron / Mateu I Bausells Arquitectos
-
PropiedadFundación La Caixa
-
FachadistaBellapart / Ferrovial
-
FotografíasAdder Bustamante
-
DirecciónP.º del Prado, 36, Centro, 28014 Madrid
-
CiudadMadrid
Sistema Constructivo
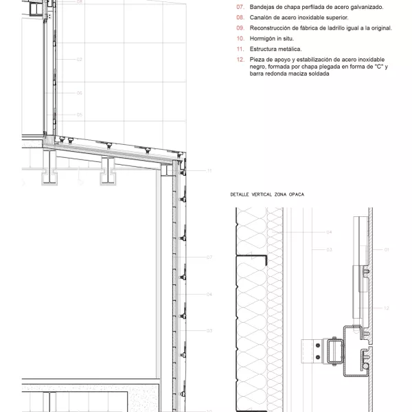
Volumen Superior / Este volumen dispone de una fachada ventilada compuesta por:
- Hoja soporte de bandejas de acero galvanizado fijadas a la nueva estructura metálica
- Sistema de bandejas engatilladas de acero inoxidable lacadas en negro mate con aislamiento interior de lana de roca de alta densidad.
- Rastrelado y revestimiento exterior compuesto por placas de fundición dúctil de acero con orografía, realizadas con molde de arena. La fijación del revestimiento exterior se realiza sobre las juntas alzadas de la chapa engatillada para preservar la estanqueidad del conjunto.
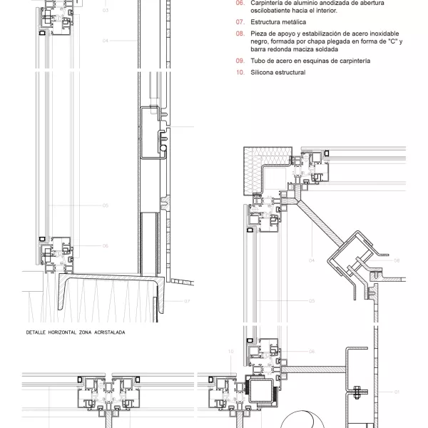
Huecos / En las zonas con entrada de luz se disponen unas piezas perforadas. Interiormente se disponen unas carpinterías de aluminio con RPT invertidas con vidrio decalado y pegado con silicona estructural por el interior para ocultar la carpintería de manera que el aspecto interior es de vidrio continuo.
Huecos en fachada de ladrillo / Los huecos fijados sobre el muro de hormigón se realizan mediante precerco metálico sobre el que se coloca por el interior un vidrio pegado a marco con silicona estructural y decalado para ocultar el marco. Exteriormente se colocan unas jambas perimetrales de acero.
Accesos / Vidrios laminados con capa espejo instalados por galce sobre elementos continuos en la parte superior e inferior con juntas verticales selladas.
